Wohnen im Grünen: Ihr modernes Domizil mit Energiebonukeys
550.000 € – 650.000 €
2025
In der Höll 1
61169 Friedberg
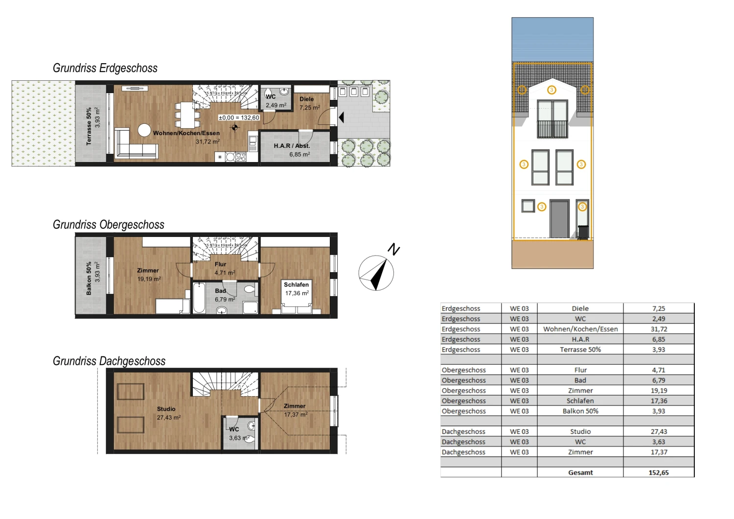
5 Zimmer
ca. 150–158 m²
Träumen Sie von einem idyllischen Zuhause, umgeben von Natur und dennoch in der Nähe aller Annehmlichkeiten? Dann sind Sie bei unserem neuesten Bauvorhaben genau richtig!
Ein Zuhause für die Zukunft:
Unsere fünf hochmodernen Reihenhäuser wurden mit Blick auf die Zukunft gestaltet. Als KfW 40 geförderte Häuser sind sie nicht nur umweltfreundlich, sondern sparen Ihnen auch langfristig Energiekosten. Auf den Dächern finden Sie Photovoltaik-Anlagen, die saubere Energie aus Sonnenlicht gewinnen und Ihr Zuhause nachhaltig mit Strom versorgen.
Perfekt für junge Familien:
Wir wissen, wie wichtig es ist, ein Zuhause zu haben, das den Bedürfnissen Ihrer Familie gerecht wird. Unsere Reihenhäuser sind großzügig gestaltet und bieten ausreichend Platz für Ihre Lieben. Jedes Haus verfügt über einen eigenen Garten, ideal für entspannte Sommerabende und zum Spielen für die Kinder. Die familiäre Lage und die Nähe zu Spazierwegen sorgen dafür, dass Sie sich hier schnell zuhause fühlen werden.
Naturnähe und Lebensqualität:
Direkt neben Ihrem neuen Zuhause erstreckt sich ein malerisches Feld, das zu entspannten Spaziergängen und Picknicks einlädt. Genießen Sie die Ruhe und Frische der Natur, ohne auf die Annehmlichkeiten der Stadt verzichten zu müssen. Die ausgezeichnete Anbindung an öffentliche Verkehrsmittel und die Nähe zu Einkaufsmöglichkeiten machen das tägliche Leben hier besonders angenehm.
Kontaktieren Sie uns noch heute, um mehr über dieses aufregende Bauvorhaben zu erfahren und die Zukunft Ihres neuen Zuhauses zu gestalten. Wir freuen uns darauf, Sie kennenzulernen und gemeinsam Ihren Wohntraum zu verwirklichen.